• vrije tijd
  • leven en welzijn
  • wonen en omgeving
  • werk en ondernemen
  • gemeente en bestuur

Snel naar:

  • bekendmakingen
  • geoloket
  • denkmee.zoersel
  • Hoplr
  • mijn vereniging
  • e-loket
  • vacatures
  • contact
  • Facebook pagina
gemeente Zoersel
  • bekendmakingen
  • geoloket
  • denkmee.zoersel
  • Hoplr
  • mijn vereniging
  • e-loket
  • vacatures
  • contact
  • Facebook pagina
  • vrije tijd
  • leven en welzijn
  • wonen en omgeving
  • werk en ondernemen
  • gemeente en bestuur

Kruimelpad

  1. Home
  2. vrije tijd
  3. organiseren en reserveren
  4. lokaal / zaal reserveren
  5. socio-culturele zaal reserveren
  6. den Bremberg

den Bremberg

wat

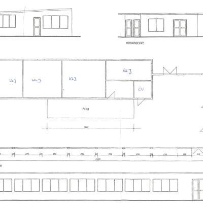
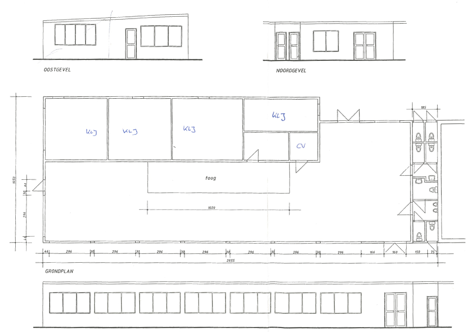
Omnisport- en speelveld Den Bremberg heeft een cafetaria, vier kleedkamers en één scheidsrechterskleedkamer die verenigingen kunnen huren. De cafetaria en kleedkamers mogen los van elkaar gehuurd worden. Privégebruik is niet mogelijk.

Je kan ook gebruikmaken van het bijbehorende speelveld, maar moet dit in sommige gevallen wel melden, onder meer:  

  • als je het speelveld wederkering gebruikt (bijvoorbeeld als je iedere vrijdag gaat voetballen); 
  • als je het gebruikt voor evenementen. 

inrichting

  • oppervlakte zaal: 185 m² 
  • ingerichte koeltoog met tapkranen en glazen

  • 114 stoelen beschikbaar en 20 tafels

4 kleedkamers

  • oppervlakte kleedkamer 1 en 2: 16 m²
  • oppervlakte kleedkamer 3 en 4: 19 m²
  • de kleedkamers zijn verbonden aan twee doucheruimtes 

reserveren

Reserveer de zaal minstens zeven dagen op voorhand via ons aanvraagformulier (via onderstaande rode knop) of via ons onthaal (zie gegevens in het contactblok). Je reserveert ook de periode die je nodig hebt voor het klaarzetten en opruimen van de activiteit.

afspraken

gebruik drank

  • Er is geen vaste brouwer verbonden aan de zaal. Je bent dus vrij om drank te bestellen bij een brouwer naar keuze. 

schoonmaak en nazorg

  • Maak de vloer van de zaal bezemschoon (als het nodig is met water en zeep). 
  • Bij gebruik van de toog maak je deze schoon. Was het gebruikte materiaal af.
  • Schakel alle toestellen uit, sluit de deuren en ramen en doe de lichten uit. 
  • Zet de tafels en stoelen terug in de juiste opstelling. 

andere afspraken

  • De zaal moet na een weekendactiviteit volledig leeg zijn op maandag om 9 uur.
  • Je moet zelf het auteursrecht via Sabam in orde brengen. Voor de billijke vergoeding betalen wij een jaarlijkse vergoeding voor de normale activiteiten in de zaal.

Bekijk het gebruikersreglement hier.

tarieven

tarieven  (inclusief btw) erkende doelgroepen (jeugd, senioren, andersvaliden)* erkende verenigingen* niet-erkende verenigingen en organisaties*
per groepskleedkamer

€ 0,75 per uur
€ 6 per dag

€ 1,50 per uur
€ 12 per dag
€ 3 per uur
€ 24 per dag
cafetaria € 1,75 per uur
€ 14 per dag
€ 3,50 per uur
€ 28 per dag
€ 7 per uur
€ 56 per dag

​* Klik hier voor meer informatie over erkenning. 

zaal reserveren
den Bremberg
den Bremberg
den Bremberg
den Bremberg
den Bremberg
den Bremberg

nuttige documenten

gebruikersreglement den Bremberg

nuttige links

Sabam en billijke vergoeding
erkennen van verenigingen
den Bremberg

onthaal

Handelslei 167
telefoon
03 2980 0 00
e-mail
gemeente@zoersel.be
openingsperiode voorjaar
01/01/2026 - 30/06/2026
openingsuren
ma:
08:30 - 12:30
13:30 - 16:30
di:
08:30 - 12:30 telefonisch tot 16.30 uur
wo:
08:30 - 12:30
13:30 - 16:30
do:
08:30 - 12:30
13:30 - 20:00
vr:
08:30 - 12:30 telefonisch tot 16 uur
nu gesloten
morgen gesloten
sluitingsdagen
vr 31.01.2025 (namiddag gesloten) wo 24.12.2025 (namiddag gesloten) do 25.12.2025 (Kerstmis) vr 26.12.2025 (tweede kerstdag) do 01.01.2026 (Nieuwjaar) vr 02.01.2026 (namiddag gesloten) ma 06.04.2026 (paasmaandag) vr 01.05.2026 (Dag van de Arbeid) do 14.05.2026 (O.H. Hemelvaart) ma 25.05.2026 (pinkstermaandag) za 11.07.2026 (feest van de Vlaamse gemeenschap) di 21.07.2026 (nationale feestdag) za 15.08.2026 (O.L.V. Hemelvaart) zo 01.11.2026 (Allerheiligen) ma 02.11.2026 (Allerzielen) wo 11.11.2026 (Wapenstilstand) vr 25.12.2026 (Kerstmis) za 26.12.2026 (tweede kerstdag)
openingsperiode zomer
01/07/2026 - 31/08/2026
openingsuren
ma:
08:30 - 12:30 telefonisch tot 16.30 uur
di:
08:30 - 12:30 telefonisch tot 16.30 uur
wo:
08:30 - 12:30
do:
08:30 - 12:30 telefonisch tot 16.30 uur
17:00 - 20:00
vr:
08:30 - 12:30 telefonisch tot 16 uur
sluitingsdagen
vr 31.01.2025 (namiddag gesloten) wo 24.12.2025 (namiddag gesloten) do 25.12.2025 (Kerstmis) vr 26.12.2025 (tweede kerstdag) do 01.01.2026 (Nieuwjaar) vr 02.01.2026 (namiddag gesloten) ma 06.04.2026 (paasmaandag) vr 01.05.2026 (Dag van de Arbeid) do 14.05.2026 (O.H. Hemelvaart) ma 25.05.2026 (pinkstermaandag) za 11.07.2026 (feest van de Vlaamse gemeenschap) di 21.07.2026 (nationale feestdag) za 15.08.2026 (O.L.V. Hemelvaart) zo 01.11.2026 (Allerheiligen) ma 02.11.2026 (Allerzielen) wo 11.11.2026 (Wapenstilstand) vr 25.12.2026 (Kerstmis) za 26.12.2026 (tweede kerstdag)
openingsperiode najaar
01/09/2026 - 31/12/2026
openingsuren
ma:
08:30 - 12:30
13:30 - 16:30
di:
8: - 12:30 telefonisch tot 16.30 uur
wo:
08:30 - 12:30
13:30 - 16:30
do:
08:30 - 12:30
13:30 - 20:00
vr:
08:30 - 12:30 telefonisch tot 16 uur
sluitingsdagen
vr 31.01.2025 (namiddag gesloten) wo 24.12.2025 (namiddag gesloten) do 25.12.2025 (Kerstmis) vr 26.12.2025 (tweede kerstdag) do 01.01.2026 (Nieuwjaar) vr 02.01.2026 (namiddag gesloten) ma 06.04.2026 (paasmaandag) vr 01.05.2026 (Dag van de Arbeid) do 14.05.2026 (O.H. Hemelvaart) ma 25.05.2026 (pinkstermaandag) za 11.07.2026 (feest van de Vlaamse gemeenschap) di 21.07.2026 (nationale feestdag) za 15.08.2026 (O.L.V. Hemelvaart) zo 01.11.2026 (Allerheiligen) ma 02.11.2026 (Allerzielen) wo 11.11.2026 (Wapenstilstand) vr 25.12.2026 (Kerstmis) za 26.12.2026 (tweede kerstdag)
openingsperiode eindjaar
22/12/2025 - 31/12/2025
openingsuren
ma:
8: - 16:30
di:
8: - 12:30 telefonisch tot 16.30 uur
wo:
8: - 16:30
do:
8: - 20:00
vr:
8: - 12:30 telefonisch tot 16 uur

gemeente & ocmw Zoersel

Handelslei 167 gemeente@zoersel.be03 2980 0 00
  • proclaimer
  • privacyverklaring
  • toegankelijkheidsverklaring

Facebook twitter