• vrije tijd
  • leven en welzijn
  • wonen en omgeving
  • werk en ondernemen
  • gemeente en bestuur

Snel naar:

  • bekendmakingen
  • geoloket
  • denkmee.zoersel
  • Hoplr
  • mijn vereniging
  • e-loket
  • vacatures
  • contact
  • Facebook pagina
gemeente Zoersel
  • bekendmakingen
  • geoloket
  • denkmee.zoersel
  • Hoplr
  • mijn vereniging
  • e-loket
  • vacatures
  • contact
  • Facebook pagina
  • vrije tijd
  • leven en welzijn
  • wonen en omgeving
  • werk en ondernemen
  • gemeente en bestuur

Kruimelpad

  1. Home
  2. vrije tijd
  3. organiseren en reserveren
  4. lokaal / zaal reserveren
  5. vergaderzalen cc Bethaniënhuis

vergaderzalen cc Bethaniënhuis

wat

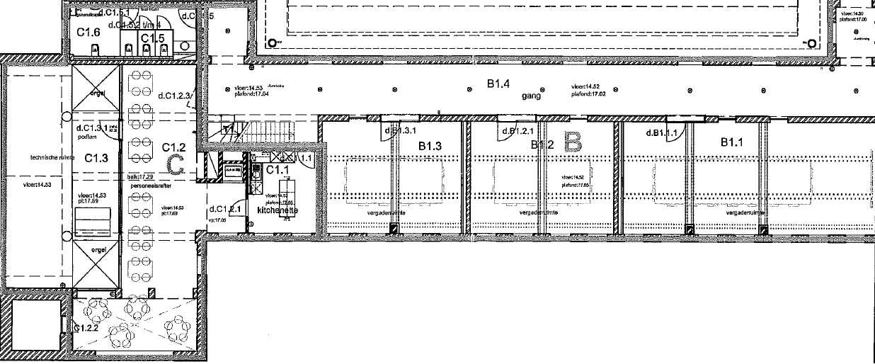
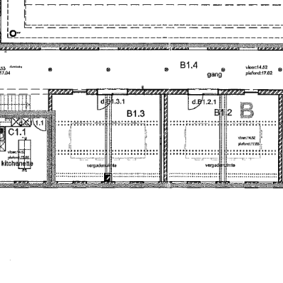
Cultureel centrum Bethaniënhuis beschikt over vier vergaderzalen. Je kan deze gebruiken voor vergaderingen, vormingsactiviteiten, voordrachten of lezingen. Daarnaast hebben we één polyvalente ruimte die je kan huren voor verschillende activiteiten.

Je kan twee werkdagen vooraf een toegangsbadge halen bij ons onthaal (Handelslei 167). Bezorg de badge daar ten laatste twee werkdagen na de activiteit terug. Vaste gebruikers van de zaal ontvangen een persoonlijke toegangsbadge.

inrichting

​vergaderzaal nul.3 

  • op gelijkvloers
  • oppervlakte 38,5 m² (7 x 5,5 m)
  • losse opstelling met 4 tafels en 12 stoelen
  • tv-scherm voor projectie

vergaderzaal één.2

  • op de eerste verdieping 
  • oppervlakte 38,5 m² (7 x 5,5 m)
  • vaste opstelling met 2 tafels en 10 stoelen
  • tv-scherm voor projectie

vergaderzaal één.3

  • op de eerste verdieping 
  • oppervlakte 38,5 m² (7 x 5,5 m)
  • vaste opstelling met 2 tafels en 10 stoelen
  • tv-scherm voor projectie

grote vergaderzaal één.1 

  • op de eerste verdieping
  • oppervlakte 68,75 m² (12,5 x 5,5 m)
  • flexibele opstelling met 8 tafels en 24 stoelen
  • beamer (projectie op de muur)

polyvalente ruimte twee.2

  • op de tweede verdieping
  • oppervlakte 88 m² (16 x 5,5 m)

reserveren

Reserveer de zaal minstens zeven dagen op voorhand via ons aanvraagformulier (via onderstaande rode knop) of via ons onthaal (zie gegevens in het contactblok). Na afloop ontvang je een factuur van ACCB nv.

afspraken

gebruik drank

Je kan bij ons onthaal tijdens de openingsuren koffie, thee en water bestellen (forfait van € 2,50 per persoon excl. btw).

schoonmaak en nazorg

  • Zet de tafels en stoelen terug in hun oorspronkelijke opstelling.
  • Zet de lege glazen en tassen bij elkaar.

andere afspraken

  • Je mag geen versieringen of andere voorwerpen ophangen (ook niet met plakband of duimspijkers).
  • Bij schade (die u niet vooraf meldde), of als u het huishoudelijk reglement niet naleefde, kan een schadevergoeding aangerekend worden.

tarieven

tarieven  (inclusief btw) erkende doelgroepen
(jeugd, senioren, andersvaliden)*
erkende verenigingen*niet-erkende verenigingen of privéorganisaties*
kleine vergaderzaal nul.3, één.2, één.3€ 1,75 per uur€ 3,50 per uur€ 20 per uur
grote vergaderzaal één.1€ 2,25 per uur€ 4,50 per uur€ 40 per uur
polyvalente ruimte twee.2€ 2,25 per uur€ 4,50 per uur€ 9 per uur

* Klik hier voor meer informatie over erkenning. 

Je kan bij ons onthaal tijdens de openingsuren koffie, thee en water bestellen (forfait van € 2,50 per persoon excl. btw).

zaal reserveren
vergaderzalen cc Bethaniënhuis
vergaderzalen cc Bethaniënhuis
vergaderzalen cc Bethaniënhuis
vergaderzalen cc Bethaniënhuis
vergaderzalen cc Bethaniënhuis

nuttige documenten

gebruikersovereenkomst en huishoudelijk reglement cultureel centrum Bethaniënhuis

nuttige links

erkennen van verenigingen
vergaderzalen cc Bethaniënhuis

onthaal

Handelslei 167
telefoon
03 2980 0 00
e-mail
gemeente@zoersel.be
openingsperiode voorjaar
01/01/2026 - 30/06/2026
openingsuren
ma:
08:30 - 12:30
13:30 - 16:30
di:
08:30 - 12:30 telefonisch tot 16.30 uur
wo:
08:30 - 12:30
13:30 - 16:30
do:
08:30 - 12:30
13:30 - 20:00
vr:
08:30 - 12:30 telefonisch tot 16 uur
nu gesloten
morgen gesloten
sluitingsdagen
vr 31.01.2025 (namiddag gesloten) wo 24.12.2025 (namiddag gesloten) do 25.12.2025 (Kerstmis) vr 26.12.2025 (tweede kerstdag) do 01.01.2026 (Nieuwjaar) vr 02.01.2026 (namiddag gesloten) ma 06.04.2026 (paasmaandag) vr 01.05.2026 (Dag van de Arbeid) do 14.05.2026 (O.H. Hemelvaart) ma 25.05.2026 (pinkstermaandag) za 11.07.2026 (feest van de Vlaamse gemeenschap) di 21.07.2026 (nationale feestdag) za 15.08.2026 (O.L.V. Hemelvaart) zo 01.11.2026 (Allerheiligen) ma 02.11.2026 (Allerzielen) wo 11.11.2026 (Wapenstilstand) vr 25.12.2026 (Kerstmis) za 26.12.2026 (tweede kerstdag)
openingsperiode zomer
01/07/2026 - 31/08/2026
openingsuren
ma:
08:30 - 12:30 telefonisch tot 16.30 uur
di:
08:30 - 12:30 telefonisch tot 16.30 uur
wo:
08:30 - 12:30
do:
08:30 - 12:30 telefonisch tot 16.30 uur
17:00 - 20:00
vr:
08:30 - 12:30 telefonisch tot 16 uur
sluitingsdagen
vr 31.01.2025 (namiddag gesloten) wo 24.12.2025 (namiddag gesloten) do 25.12.2025 (Kerstmis) vr 26.12.2025 (tweede kerstdag) do 01.01.2026 (Nieuwjaar) vr 02.01.2026 (namiddag gesloten) ma 06.04.2026 (paasmaandag) vr 01.05.2026 (Dag van de Arbeid) do 14.05.2026 (O.H. Hemelvaart) ma 25.05.2026 (pinkstermaandag) za 11.07.2026 (feest van de Vlaamse gemeenschap) di 21.07.2026 (nationale feestdag) za 15.08.2026 (O.L.V. Hemelvaart) zo 01.11.2026 (Allerheiligen) ma 02.11.2026 (Allerzielen) wo 11.11.2026 (Wapenstilstand) vr 25.12.2026 (Kerstmis) za 26.12.2026 (tweede kerstdag)
openingsperiode najaar
01/09/2026 - 31/12/2026
openingsuren
ma:
08:30 - 12:30
13:30 - 16:30
di:
8: - 12:30 telefonisch tot 16.30 uur
wo:
08:30 - 12:30
13:30 - 16:30
do:
08:30 - 12:30
13:30 - 20:00
vr:
08:30 - 12:30 telefonisch tot 16 uur
sluitingsdagen
vr 31.01.2025 (namiddag gesloten) wo 24.12.2025 (namiddag gesloten) do 25.12.2025 (Kerstmis) vr 26.12.2025 (tweede kerstdag) do 01.01.2026 (Nieuwjaar) vr 02.01.2026 (namiddag gesloten) ma 06.04.2026 (paasmaandag) vr 01.05.2026 (Dag van de Arbeid) do 14.05.2026 (O.H. Hemelvaart) ma 25.05.2026 (pinkstermaandag) za 11.07.2026 (feest van de Vlaamse gemeenschap) di 21.07.2026 (nationale feestdag) za 15.08.2026 (O.L.V. Hemelvaart) zo 01.11.2026 (Allerheiligen) ma 02.11.2026 (Allerzielen) wo 11.11.2026 (Wapenstilstand) vr 25.12.2026 (Kerstmis) za 26.12.2026 (tweede kerstdag)
openingsperiode eindjaar
22/12/2025 - 31/12/2025
openingsuren
ma:
8: - 16:30
di:
8: - 12:30 telefonisch tot 16.30 uur
wo:
8: - 16:30
do:
8: - 20:00
vr:
8: - 12:30 telefonisch tot 16 uur

gemeente & ocmw Zoersel

Handelslei 167 gemeente@zoersel.be03 2980 0 00
  • proclaimer
  • privacyverklaring
  • toegankelijkheidsverklaring

Facebook twitter