• vrije tijd
  • leven en welzijn
  • wonen en omgeving
  • werk en ondernemen
  • gemeente en bestuur

Snel naar:

  • bekendmakingen
  • iets melden
  • denkmee.zoersel
  • Hoplr
  • mijn vereniging
  • e-loket
  • vacatures
  • contact
  • Facebook pagina
gemeente Zoersel
  • bekendmakingen
  • iets melden
  • denkmee.zoersel
  • Hoplr
  • mijn vereniging
  • e-loket
  • vacatures
  • contact
  • Facebook pagina
  • vrije tijd
  • leven en welzijn
  • wonen en omgeving
  • werk en ondernemen
  • gemeente en bestuur

Kruimelpad

  1. Home
  2. zaal Elite

zaal Elite

wat

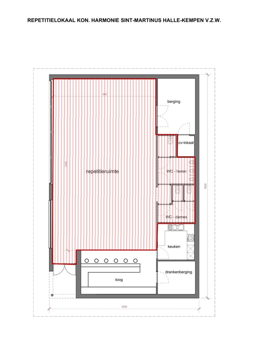
Zaal Elite is een lokaal van de harmonie Sint-Martinus van Halle-Zoersel. Deze zaal is beperkt beschikbaar voor erkende verenigingen, erkende wijkraden, scholen, adviesraden, Zoerselse politieke partijen, verzorgingsinstellingen en welzijnsvoorzieningen.

Er kunnen maximum 100 bezoekers in de zaal.

reserveren

  • namens een erkende vereniging, erkende wijkraad, school, adviesraad, Zoerselse politieke partij, verzorgingsinstelling of welzijnsvoorziening kan je zaal Elite reserveren bij de gemeente Zoersel, evenementen@zoersel.be, 03 2980 925 of via onderstaand formulier

  • via de gemeente kan je enkel op weekdagen reserveren voor verenigingsactiviteiten, culturele activiteiten, vergaderingen en infomomenten

  • je krijgt enkel de repetitieruimte en toiletten ter beschikking. Toog, drankenberging, keuken en berging vallen buiten de terbeschikkingstelling

  • wil je de toog, keuken en bergingen gebruiken, dan maak je hiervoor aparte afspraken met de harmonie via zaalverhuur@harmoniehalle.be (hier zijn aparte kosten aan verbonden)

  • maximum één jaar en minimum zeven dagen op voorhand te reserveren

praktische afspraken

Verdere praktische afspraken worden in overleg met gemeente en harmonie Sint-Martinus gemaakt.

tarieven

 
tarieven voor gebruik (enkel voor erkende verenigingen)
 
basistarief

halftarief voor doelgroepen

zaal Elite 

€ 32 per dag
€ 5 per uur

€ 16 per dag
€ 2,5 per uur
toog, keuken, bergingen zelf af te spreken met de harmonie
zaal reserveren
zaal Elite

nuttige links

Sabam en billijke vergoeding
erkennen van verenigingen
zaal Elite

evenementen en noodplanning

Handelslei 167
telefoon
03 2980 9 25
e-mail
evenementen@zoersel.be

maak een afspraak via telefoon of e-mail

gemeente & ocmw Zoersel

Handelslei 167 gemeente@zoersel.be03 2980 0 00
  • proclaimer
  • privacyverklaring
  • toegankelijkheidsverklaring

Facebook twitter